1. Accueil
  2. Achat
  3. Achat Appartement
  4. Achat Appartement Vendee (85)
  5. Achat Appartement CHATEAU D OLONNE (85180)

Appartement T2 à vendre 2 pièces - 36,57 m2 CHATEAU D OLONNE - 85

Ref : 1487

214 000 €

  • Honoraires charge vendeur
Appartement T2 à vendre - 2 pièces - 36.57 m2 - CHATEAU D OLONNE - 85 - PAYS-DE-LOIRE - Century 21 Bleu Marine
Appartement T2 à vendre - 2 pièces - 36.57 m2 - CHATEAU D OLONNE - 85 - PAYS-DE-LOIRE - Century 21 Bleu Marine
Appartement T2 à vendre - 2 pièces - 36.57 m2 - CHATEAU D OLONNE - 85 - PAYS-DE-LOIRE - Century 21 Bleu Marine
Envoyer un message
Message
Envoyer ce bien à un ami

Description

BOURG DU CHATEAU D'OLONNE - Appartement T2 neuf - Livraison 3ème trimestre 2028.

Votre agence Century 21 Bleu Marine vous présente à la vente ce T2 au deuxième étage de 36m² dans une résidence neuve qui verra le jour au troisième trimestre 2028.

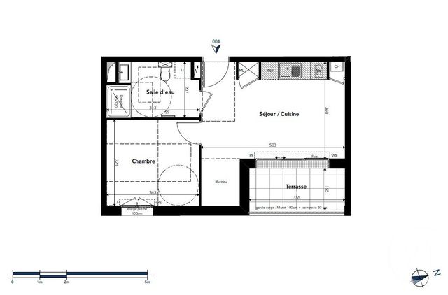
Ce T2 se compose d'un salon avec cuisine aménagée équipée, d'une chambre de 11m², d'une salle d'eau avec WC et d'un balcon de 10m².

La vente comprend également un stationnement en extérieur.

Pour plus d'informations contactez notre agence Century 21 Bleu Marine aux Sables d'Olonne au 02.52.20.34.03 ou venez à notre rencontre au 5 cours Louis Guedon, 85100 Les Sables d'Olonne.

Localisation

Laissez-nous vos coordonnées pour obtenir la localisation

Envoyer

Afficher sur la carte :

Localiser le bien

Vue globale

  • Surface totale : 46,6 m2
  • Surface habitable : 36,6 m2
  • Type d'appartement : T2
  • Étage : 2ème
  • Nombre de pièces : 2
    • Séjour (20,2 m2)
    • Chambre (11,8 m2)
    • Salle d'eau (4,7 m2)
    • Balcon (10 m2)
  • Type de construction : Traditionnelle
  • Année construction : 2028

Équipements

Les plus

P

Parking exterieur

Rue

Général

  • Parking exterieur : 1 place(s)
  • Chauffage : Individuel radiateur gaz
  • Eau chaude : Chaudière gaz
  • Toiture : Tuile
  • Ascenseur
  • Balcon
  • Videophone

À savoir

Copropriété

  • Nombre de Lots : 21
  • Charges courantes par an : 1,0 €
  • Pas de procédure en cours

Les performances énergétiques

Non soumis au DPE

Envoyer à un ami

Envoyer

Envoyer un message :

Envoyer

Créer votre alerte

Rappel de vos critères de recherche :

Erreur dans les critères envoyés

Limite d'alertes atteinte

Cette alerte existe déjà

Cette alerte est déjà enregistrée pour cette adresse email. Vous continuerez à recevoir les biens correspondant à vos critères.

Une erreur est survenue

Merci de réessayer ultérieurement.

Votre alerte a été créée

Vous recevrez les biens correspondant à vos critères.

logo vente privées

48h

d’avance sur
le marché

Prenez un temps d’avance sur le marché en profitant gratuitement des Ventes Privées CENTURY 21

Si ce n’est déjà fait, allez compléter le profil de votre compte afin de pouvoir recevoir en avant-première des biens exclusifs, réservés à nos clients pendant les 48 premières heures suivant leur commercialisation.

Nos agences proposent régulièrement des biens comme celui que vous cherchez

Ne ratez pas une opportunité, on vous alerte en priorité !

Êtes-vous actuellement propriétaire de votre bien ?
Créer une alerte
Je souhaite être alerté
Voir les biens correspondants